Akyol Kamps Architekten
Hamburg, Deutschland
Otto GOeast Gebäude 4
Hamburg
Leitender Planer Außenhülle für den Umbau eines Lagergebäudes zu einem Bürogebäude auf dem Campus der Otto Group in Hamburg Bramfeld. Bearbeitung der Genehmigungs- und Ausführungsplanung für die Gebäudefassaden und die Dächer der neuen Otto Hauptverwaltung. Verantwortlich für die Ausarbeitung und Entwicklung der Details für die Außenhülle, unter anderem für die neuen Fensterelemente in der WDVS Fassade, das Glasdach für das neue Atrium und die Bügelfassaden über den Gebäudezugängen der West- und Ostfassade.
Mitarbeit vom 01.06.2018 bis heute
Leitender Planer Außenhülle
Qualitätsmanagement
Stellvertretung der Projektleitung
Bauherr: Otto Group
Fertigstellung: 2022
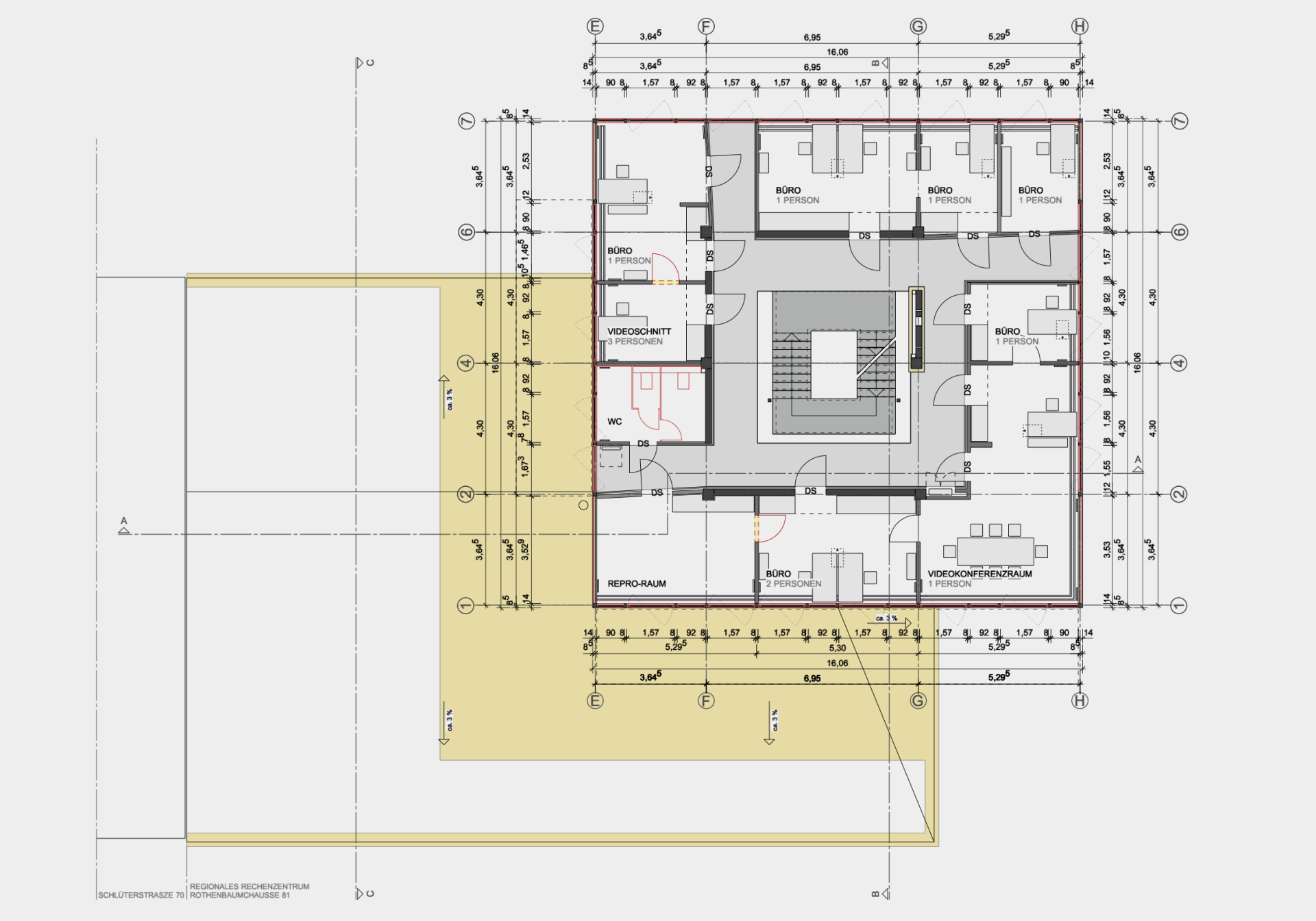
Rechenzentrum Universität Hamburg
Hamburg
Bearbeitung der Entwurfs- und Ausführungsplanung für die denkmalgerechte Sanierung des Rechenzentrums der Universität Hamburg als Projektleiter in Abstimmung mit der Denkmalbehörde.
Hauptbestandteil der Planung sind neben der Fassadeninstandsetzung mit energetischer Verbesserung der Fensterelemente für den langfristigen Erhalt des Gebäudes auch die Verbesserung des Nutzungskomforts durch eine Renovierung der Innenräume und einer Modernisierung der Haustechnik.
Vor dem Hintergrund der Einstufung des Bauwerks als Denkmal sind die unmittelbar an die Fassade angrenzenden Bauteile mit in die Sanierungsmaßnahme einzubeziehen.
Detaillierte Planung für die erforderliche, neue Brandschutzverkleidung der konstruktiv und statisch relevanten Zugstäbe in der Außenfassade.
Mitarbeit vom 05.01.2017 bis 31.03.2019
Projektleiter
Bauherr:
Universität Hamburg
Fertigstellung: 2022
Rechenzentrum Universität Hamburg
Ansicht Rot mit Sanierungsmaßnahmen
Image © Akyol Kamps Architekten
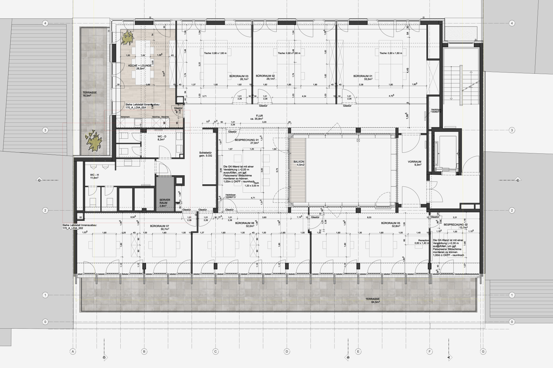
Phoenix-Kontor, Brandsende 6-10
Hamburg
Ausführungsplanung für den Umbau, die Revitalisierung und Aufstockung eines Bürogebäudes in der Hamburger Innenstadt. Als leitender Planer für die Außenhülle die detaillierte Planung für die Gebäudefassaden und für das Dach bearbeitet.
Unter Berücksichtigung des bestehenden Rohbaus war die geplante Nutzungsänderung mit Integration eines Hotels in den ersten vier Obergeschossen eine besondere Herausforderung für die Planung von Fassade, Haustechnik und Brandschutz.
Während der Bauausführung Übernahme der Projektleitung und Unterstützung der örtlichen Bauleitung bei Bauaüberwachung und Abstimmungen mit den beauftragten Ausführungsgewerken auf der Baustelle.
Mitarbeit vom 28.09.2016 bis 02.05.2019
Projektleitung (Übernahme während der Bauphase)
Bauherr: HPE Hanseatische Projektentwicklung
Fertigstellung: Juni 2019
Phoenix-Kontor, Brandsende 6-10
1..-4.Obergeschoss:: Neue Hotelnutzung
Image © Jochen Stüber & Akyol Kamps Architekten
Wohnhaus Dr. Körber
Hamburg
Bearbeitung von Teilen der Ausführungsplanung für den Umbau des ehemaligen Wohnhauses von Dr. Kurt Körber in Hamburg-Bergedorf. Neben der Ausarbeitung von Ausführungsdetails für den neuen Konferenzraum, Prüfung von Werk- & Montagepläne und Unterstützung der Bauleitung vor Ort bei der Ausführung der Umbaumaßnahme. Schwerpunkt der Detailplanung war die neu Stahltreppe mit beleuchteten Handläufen, die großen verglasten Schiebetüren mit verschiebaren und aufklappbaren Sonnenschutzelementen zum Garten
Mitarbeit vom 01.10 2015 bis 15.04.2016
Bauherr: Körberstiftung
Fertigstellung: Mai 2016
Wohnhaus Dr.Körber
Blick in den neuen Konferenzraum
Image © Akyol Kamps Architekten


























