Christoph Mäckler Architekten
Frankfurt am Main, Deutschland
Deutsches Romantikmuseum
Frankfurt / Main
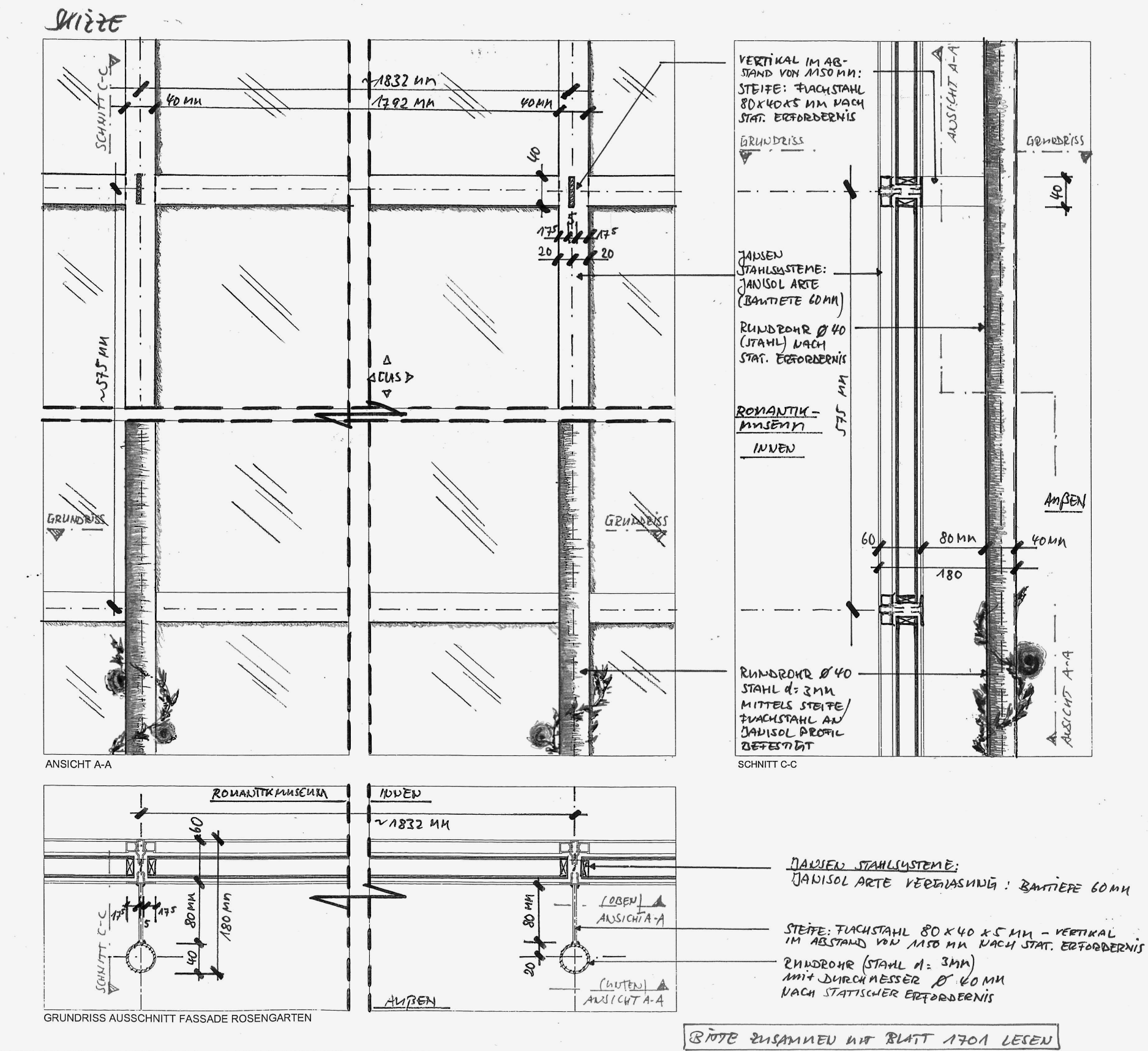
Bearbeitung der Ausführungsplanung mit Schwerpunkt Außenhülle für das neue Museum in Nachbarschaft zum Goethehaus im Zentrum von Frankfurt am Main. Entwicklung von Dach- und Fassadendetails unter anderem für die Rosengartenfassade zum Innenhof, für das Mauerwerksfries "Deutsches Band" in der Straßenfassade und für die Dächer drei zusammenhängenden Gebäude in der Straße am Großen Hirschgraben.
Mitarbeit vom 01.04 2015 bis 25.09.2015
Bauherr: ABG Frankfurt Holding
Fertigstellung 2021
Deutsches Romantikmuseum
Skizze: Entwicklung der "Rosengartenfassade" - Übersicht
Image © Christoph Mäckler Architekten
Konzernforum "Drive" der Volkswagen Group
im Lindencorso
Berlin
Ausführungsplanung für den Umbau und die Sanierung der Außenfassaden und neuen Innenfassaden innerhalb des Lindencorso in der Straße "Unter den Linden". Darüber hinaus wurden auch Details für die Glasschiebetüren zwischen Ausstellung und Verkaufsshop, innenliegende Treppen und die umlaufenden Brüstungen des 1.Obergeschoss der Ausstellungshalle ausgearbeitet. Die Prüfung von Werk- und Montageplänen, und Ab-stimmungsgespräche mit den Ausführungs-gewerken vor Ort gehörten zur Aufgabe.
Mitarbeit vom 01.07.2014 bis 31.03.2015
Bauherr: Volkswagen AG
Fertigstellung: 2015
Konzernforum "Drive" im Lindencorso
Innenliegende Glassfassade mit Glasschiebetor
Image © Christoph Mäckler Architekten
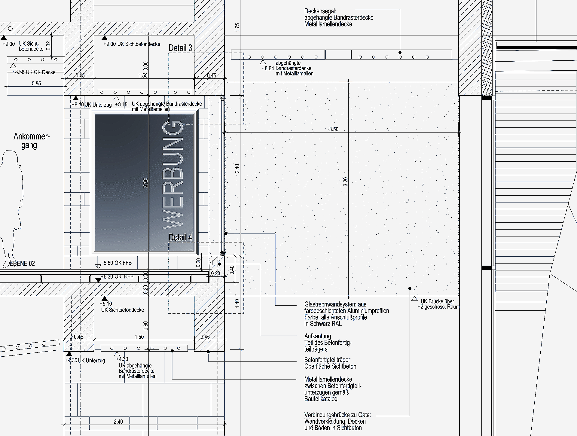
Projekt:
Terminal 3 Frankfurt Airport
Frankfurt / Main
Bearbeitung von Leitdetails in der Leistungsphase LP mit Schwerpunkt "Innenfassaden" vom neuen Terminalgebäude und den Piers J und K. Entwicklung von Fassadenanschlußdetails in Abstimmung mit den Gewerken Statik, Haustechnik und Brandschutz.
Mitarbeit vom 15.10 2012 bis 30.06.2014
Teilprojektleiter Innenfassaden
Bauherr: Fraport AG
Fertigstellung: 2023 (in Bau)
Terminal 3 Frankfurt Airport
Pier J mit eingestelleter Retailbox
Image © Fraport AG & Christoph Mäckler Architekten





















